GRATENOUR – Rue Louis Pasteur
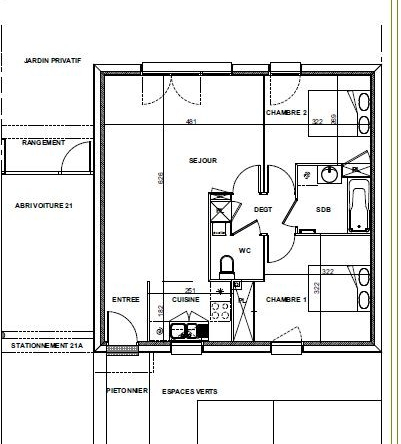
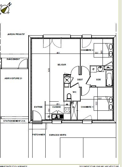
Villa de type 3 de plain-pied d’une superficie de 63.60 m² composée d’une entrée, un séjour avec coin cuisine, un dégagement avec placard, une salle de bains, un wc, deux chambres avec placard.
Un jardin.
Un stationnement et un abri voiture disposant en fond d’un espace rangement.
L’abonnement eau est à souscrire.
Le service location n’est pas situé dans nos locaux. Aucune information ni visite ne sera donnée sur place ou par téléphone. Merci de postuler uniquement via l’annonce
Les informations sur les risques auxquels ce bien est exposé sont disponibles sur le site Géorisques : www. georisques. gouv. fr
Les informations sur les risques auxquels ce bien est exposé sont disponibles sur le site Géorisques.
Nous vous accompagnons à chaque étape : de la recherche du bien à la signature du bail ou de l’acte de vente. Découvrez notre sélection de logements, que vous soyez locataire, investisseur ou propriétaire.
Comparer les annonces
ComparerPlease enter your username or email address. You will receive a link to create a new password via email.